REQUEST A TOUR If you would like to see this home without being there in person, select the "Virtual Tour" option and your agent will contact you to discuss available opportunities.
In-PersonVirtual Tour

$ 2,400,000
Est. payment | /mo
8,976 SqFt
$ 2,400,000
Est. payment | /mo
8,976 SqFt
Key Details
Property Type Commercial
Sub Type Industrial
Listing Status Active
Purchase Type For Sale
Square Footage 8,976 sqft
Price per Sqft $267
MLS Listing ID A2231015
Year Built 2025
Lot Size 3.160 Acres
Acres 3.16
Property Sub-Type Industrial
Property Description
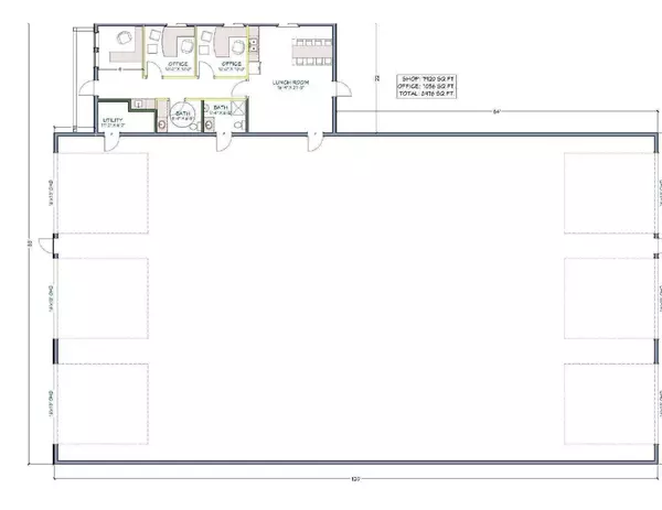
(3) 120' DRIVE THROUGH BAYS AND PLENTY OF FENCED YARD with prime frontage to get your business noticed on this very busy route. BRAND NEW build with 6) 16' W X 18 'H Overhead doors. Reception and 2 offices plus Lunchroom/ Boardroom/ locker room and separate shop and office bathroom. Yard will be completed with well packed gravel and fully fenced. Need more yard, shop or something custom? Reach out. Adjoining 4.33 acres can be purchased as well.
Location
Province AB
Zoning GC
Interior
Fireplace No
Exterior
Water Access Desc Well
Garage No
Building
Dwelling Type Industrial
Sewer Holding Tank
Water Well
Others
Restrictions None Known
Listed by RE/MAX Grande Prairie







